テナント情報のご案内
| 部屋番号 | 面積(坪数) | 賃料 | 敷金 | 礼金 | 管理・共益費 | セコム |
|---|---|---|---|---|---|---|
| 1-A | 52.50 m² (約15.88坪) |
¥130,000 | ¥390,000 | ¥130,000 | ¥10,285 | ¥6,252 |
| 1-B | 45.00 m² (約13.61坪) |
¥111,000 | ¥333,000 | ¥111,000 | ||
| 1-C | 45.00 m² (約13.61坪) |
¥110,000 | ¥330,000 | ¥110,000 | ||
| 2-A | 67.50 m² (約15.88坪) |
契約済 | - | - | ||
| 2-B | 63.75 m² (約19.28坪) |
契約済 | - | - | ||
| 2-C | 41.25 m² (約12.47坪) |
契約済 | - | - | ||
| 3-A | 35.00 m² (約10.58坪) |
¥82,000 | ¥246,000 | ¥82,000 | ||
| 3-B | 53.75 m² (約16.25坪) |
¥126,000 | ¥378,000 | ¥126,000 | ||
| 3-C | 56.25 m² (約17.01坪) |
¥131,000 | ¥393,000 | ¥131,000 | ||
| 3-D | 32.25 m² (約9.75坪) |
¥74,000 | ¥222,000 | ¥74,000 | ||
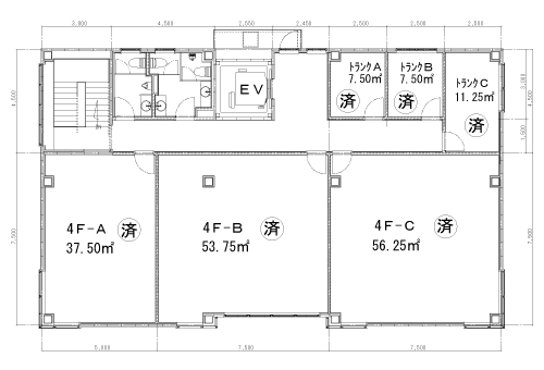
| 4-A | 37.50 m² (約11.34坪) |
契約済 | - | - | ||
| 4-B | 53.75 m² (約16.25坪) |
契約済 | - | - | ||
| 4-C | 56.25 m² (約17.01坪) |
契約済 | - | - | ||
| トランク-A | 7.50 m² (約2.26坪) |
契約済 | - | - | - | - |
| トランク-B | 7.50 m² (約2.26坪) |
契約済 | - | - | - | - |
| トランク-C | 11.25 m² (約3.40坪) |
契約済 | - | - | - | - |
| 駐車場は【1台分無償】ですが、2台目から、1台¥3,600円となります。 2台目の分が満車の場合がございますので、予めご了承くださいませ。 |
||||||

美石テナントビル 全13部屋
国道8号線沿いのシンプルな外観が特徴の建物です。
他入居テナントもお洒落なブティック、エステ教室など健康や美をコンセプトのもとにしたものばかりで特にオススメです。

1階間取り図
2階間取り図
3階間取り図
4階間取り図


